ライオンズマンション習志野第三 1階
■イオンハウジングの不動産仲介
■イオンモール幕張新都心店にて年中無休で営業中
■周辺環境良好
イベント情報
- ※事前に必ずお問い合わせください
- ◆ お電話受付時間 ◆
10時~21時
年中無休
◆ 内覧のご案内 ◆
・事前に鍵の手配、日時の調整をさせていただきます。
◆ お気軽にお問い合わせください ◆
・内覧ご希望物件以外にも、ご要望に合わせてご提案、ご案内を致します。
・住宅ローンのご相談
・購入までに必要な準備やお引渡しまでの流れ 等
043-272-8666
ローンシミュレーションこの物件を購入した場合の、月々の支払い価格の一例です。借り入れを保証するものではございません。
- 返済期間
-
- 金利
-
- ボーナス時の増額(1回分)
-
- 借入金額:
-
- 頭金:
-

- 毎月の返済額:
(※元利均等方式 金利5.00%まで ※返済年数5~50年まで入力できます)
(※ボーナスは年2回で計算しています。1000万円まで入力できます)
(※物件購入時、その他諸費用が発生する場合がございます)
担当者のコメント お客さま担当

- イオンハウジング幕張新都心店は、年中無休10時~21時まで営業中!お気軽にお立ち寄り下さい。イオン銀行変動金利0.83%ご紹介可能、毎日のお買い物が5%OFFに!
■内覧ご希望物件以外にも、お客様のご要望に合わせた物件のご提案、ご案内致します。
■住宅ローンのご相談
■購入までに必要な準備やお引渡しまでの流れ
どんなことでもお気軽にご相談ください
ポイント・特徴
物件概要
【中古マンション】 物件番号:100000521 情報更新日:2026年05月20日 次回更新予定日:2026年06月03日| 所在地 | 千葉県習志野市東習志野5丁目24-5 | ||
|---|---|---|---|
| 交通 | |||
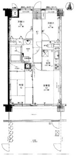
| 間取り/詳細 | 3LDK | ||
| 専有面積/バルコニー面積 | 59.16㎡/9.86㎡ | ルーフバルコニー面積/テラス面積/専用庭面積 | -/-/- |
| 価格 | 1,580万円 | ||
| 管理費 | 13,400円 | ||
| 修繕積立金 | 11,830円 | 修繕積立基金 | - |
| 権利金 | - | 駐車場/月額料金 | 空無/ |
| 土地の敷金/保証金 | -/- | 借地料/借地期間 | -/- |
| 土地権利 | 所有権 | 国土法届出要否 | 不要 |
| 用途地域 | - | 地勢 | - |
| 種別/構造 | 中古マンション/鉄筋コンクリート | 向き | 南 |
| 築年月(築年数) | 1992年 5月 (築34年) | ||
| 所在階/階建 | 1階/6階建 | 棟総戸数/販売戸数 | 42戸/1戸 |
| 管理組合有無 | 有 | 管理形態 | 管理会社に全部委託 |
| 管理員の勤務形態 | 日勤 | 管理会社 | 大京アステージ |
| 取引態様 | 仲介 | 現況 | 空家 |
| 引渡し | 相談 | 建築確認番号 | - |
| 物件番号 | 100000521 | 取引条件の有効期限 | 2026年06月03日 |
| 設備条件 |
|
||
| 備考 | 専有面積59.16㎡でご家族と過ごすのにも問題のない広さです◎バルコニーが付いています◎バルコニーの広さは9.86平米です◎南向きの物件です◎習志野市エリアの京成本線実籾周辺で充実した暮らしをお求めなら、ah-makuharis@aeonmall.comにお問い合わせください◎見学の予約や質問等を承っております(^^) | ||
| 取扱会社 |
|
||
※地図上に表示される物件の位置は付近住所に所在することを表すものであり、実際の物件所在地とは異なる場合がございます。




















