習志野市東習志野3丁目 中古戸建
■イオンハウジングの不動産仲介
■イオンモール幕張新都心店にて年中無休で営業中
■スーパー、コンビニ、ドラッグストアなどの買物施設が徒歩7分圏内に揃う便利な住環境
■隣地駐車場につき3方が開けた開放感のある邸宅
イベント情報
- ※事前に必ずお問い合わせください
- ◆ お電話受付時間 ◆
10時~21時
年中無休
◆ 内覧のご案内 ◆
・事前に鍵の手配、日時の調整をさせていただきます。
◆ お気軽にお問い合わせください ◆
・内覧ご希望物件以外にも、ご要望に合わせてご提案、ご案内を致します。
・住宅ローンのご相談
・購入までに必要な準備やお引渡しまでの流れ 等
043-272-8666
ローンシミュレーションこの物件を購入した場合の、月々の支払い価格の一例です。借り入れを保証するものではございません。
- 返済期間
-
- 金利
-
- ボーナス時の増額(1回分)
-
- 借入金額:
-
- 頭金:
-

- 毎月の返済額:
(※元利均等方式 金利5.00%まで ※返済年数5~50年まで入力できます)
(※ボーナスは年2回で計算しています。1000万円まで入力できます)
(※物件購入時、その他諸費用が発生する場合がございます)
担当者のコメント お客さま担当

- イオンハウジング幕張新都心店は、年中無休10時~21時まで営業中!お気軽にお立ち寄り下さい。イオン銀行変動金利0.83%ご紹介可能、毎日のお買い物が5%OFFに!
■内覧ご希望物件以外にも、お客様のご要望に合わせた物件のご提案、ご案内致します。
■住宅ローンのご相談
■購入までに必要な準備やお引渡しまでの流れ
どんなことでもお気軽にご相談ください
ポイント・特徴
物件概要
【中古一戸建】 物件番号:96947844 情報更新日:2026年01月20日 次回更新予定日:2026年02月03日| 所在地 | 千葉県習志野市東習志野3丁目 | ||
|---|---|---|---|
| 交通 | |||
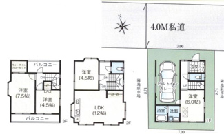
| 間取り/詳細 |
4LDK/ LDK 12.0帖/洋室 6.0帖/洋室 4.5帖/洋室 4.5帖/洋室 7.5帖 |
建物面積(坪数) | 99.56㎡(30.11坪) |
| 価格 | 2,190万円 | ||
| 駐車場/月額料金 | 有/- | ||
| 土地の敷金/保証金 | -/- | 借地料/借地期間 | -/- |
| 土地権利 | 所有権 | 土地面積(坪数) | 61.15㎡(18.49坪) |
| 傾斜地部分面積 | - | 路地状敷地 | - |
| 私道負担面積/セットバック | -/- | 高圧線下面積 | - |
| 地目/地勢 | 宅地/- | 接道状況 | 一方(北 私道 4.0m) |
| 建ぺい率/容積率 | 60%/200% | 用途地域 | 第一種中高層住居専用 |
| 都市計画 | 市街化区域 | 種別/構造 | 中古一戸建/鉄骨鉄筋コンクリート |
| 階建 | 3階建 | 築年月(築年数) | 1994年 4月 (築31年) |
| 総区画数/販売区画数 | 1区画/1区画 | 向き | - |
| 現況 | 空家 | その他の法令上の制限 | - |
| 取引態様/引渡時期 | 仲介/相談 | 建築確認番号 | - |
| 物件番号 | 96947844 | 取引条件の有効期限 | 2026年02月03日 |
| リフォーム |
2025年10月 キッチン 浴室 トイレ 壁 床 ■全室クロス貼替え ■全室コンセント・スイッチ交換 ■一部建具交換 ■キッチン・浴室・洗面台・トイレ交換 ■和室 洋室変更 ■シリンダー交換 ■防蟻処理 2025年10月 外壁 屋根 ■屋根上塗り ■外壁コーキング一部打ち直し |
||
| 設備条件 |
|
||
| 備考 | ファミリーに好評!経済的にもうれしい中古の戸建て物件です!建物面積が99.56㎡と十分な広さでゆったりと生活できるのではないのでしょうか!クローゼット付きの物件です!徒歩15分で駅へのアクセスが可能な物件です!イオンモール イオンハウジング幕張新都心店は心温まる空間を演出する戸建てを、京成本線実籾近郊よりご提供いたします!043-272-8666から遠慮なくご連絡ください(#^^#) | ||
| 取扱会社 |
|
||
※地図上に表示される物件の位置は付近住所に所在することを表すものであり、実際の物件所在地とは異なる場合がございます。




















