千葉市若葉区若松台二丁目 新築分譲住宅3号棟
◆イオンハウジングの不動産仲介
◆イオンモール幕張新都心店にて年中無休で営業中
◆断熱等級6・耐震等級3の長期優良住宅
◆並列駐車2台可能(車種によります)
◆若松台小学校 徒歩7分500m・若松中学校 徒歩28分2200m
現地案内会
- ※事前に必ずお問い合わせください
- ◆ お電話受付時間 ◆
10時~21時
年中無休
◆ 内覧のご案内 ◆
・事前に鍵の手配、日時の調整をさせていただきます。
◆ お気軽にお問い合わせください ◆
・内覧ご希望物件以外にも、ご要望に合わせてご提案、ご案内を致します。
・住宅ローンのご相談
・購入までに必要な準備やお引渡しまでの流れ 等
043-272-8666
ローンシミュレーションこの物件を購入した場合の、月々の支払い価格の一例です。借り入れを保証するものではございません。
- 返済期間
-
- 金利
-
- ボーナス時の増額(1回分)
-
- 借入金額:
-
- 頭金:
-

- 毎月の返済額:
(※元利均等方式 金利5.00%まで ※返済年数5~50年まで入力できます)
(※ボーナスは年2回で計算しています。1000万円まで入力できます)
(※物件購入時、その他諸費用が発生する場合がございます)
担当者のコメント お客さま担当

- イオンハウジング幕張新都心店は、年中無休10時~21時まで営業中!お気軽にお立ち寄り下さい。イオン銀行変動金利0.83%ご紹介可能、毎日のお買い物が5%OFFに!
■内覧ご希望物件以外にも、お客様のご要望に合わせた物件のご提案、ご案内致します。
■住宅ローンのご相談
■購入までに必要な準備やお引渡しまでの流れ
どんなことでもお気軽にご相談ください
ポイント・特徴
物件概要
【新築一戸建】 物件番号:101065973 情報更新日:2026年05月20日 次回更新予定日:2026年06月03日| 所在地 | 千葉県千葉市若葉区若松台2丁目8-15 | ||
|---|---|---|---|
| 交通 | |||
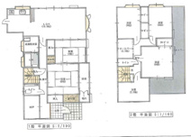
| 間取り/詳細 |
3LDK/ LDK 20.5帖 1室/洋室 7.5帖 2室/洋室 6.7帖 1室 3LDK |
建物面積(坪数) | 101.02㎡(30.55坪) |
| 価格 | 3,280万円 | ||
| 駐車場/月額料金 | 有(2台)/- | ||
| 土地の敷金/保証金 | -/- | 借地料/借地期間 | -/- |
| 土地権利 | 所有権 | 土地面積(坪数) | 130.02㎡(39.33坪) |
| 傾斜地部分面積 | - | 路地状敷地 | - |
| 私道負担面積/セットバック | -/- | 高圧線下面積 | - |
| 地目/地勢 | 宅地/- | 接道状況 | 一方(南東 公道 5.8m) |
| 建ぺい率/容積率 | 50%/100% | 用途地域 | 第一種低層住居専用 |
| 都市計画 | 市街化区域 | 種別/構造 | 新築一戸建/木造 |
| 階建 | 2階建 | 築年月(築年数) | 2026年 3月 (新築) |
| 総区画数/販売区画数 | -/- | 向き | 南西 |
| 現況 | 完成済み | その他の法令上の制限 | 防火地域 |
| 取引態様/引渡時期 | 仲介/相談 | 建築確認番号 | 第25UDI1W建08788号 |
| 物件番号 | 101065973 | 取引条件の有効期限 | 2026年06月03日 |
| 設備条件 |
|
||
| 備考 | 3LDKの物件で、開放感のある生活を送る事が出来ます。3口コンロが付いているので、3つの料理を同時に進められて時短につながります。南西向きの物件をお探しの方、コチラよりご覧ください。交通アクセスの良い千葉市若葉区エリアで、より素敵な暮らしを送りましょう。043-272-8666、ah-makuharis@aeonmall.comからイオンモール イオンハウジング幕張新都心店までお問い合わせ下さい。 | ||
| 取扱会社 |
|
||
※地図上に表示される物件の位置は付近住所に所在することを表すものであり、実際の物件所在地とは異なる場合がございます。




















